Таунхаус 271 кв.м на участке 3 сот

Супсех, ул Дизайнерская

Нас. пункт Супсех
Код объекта 58019
Назначение ИЖС
Всего комнат 3
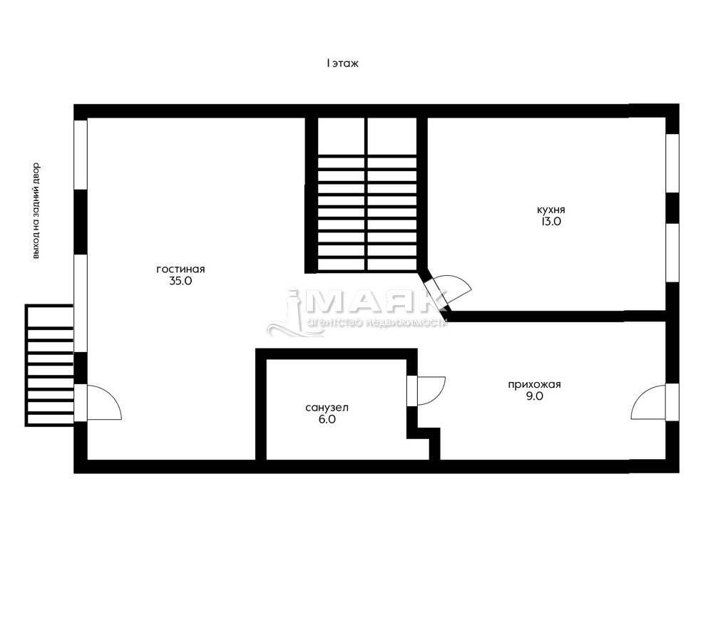
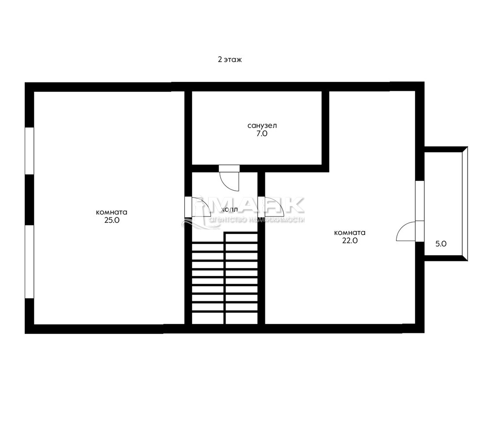
Площадь (м2) 271 / 60 / 30
Площадь участка 3 сот.
Фасад участка 10 м.
Этажей 2
Отопление электрическое
Газоснабжение нет
Водоснабжение автономное
Канализация автономная
Ипотека да
Год сдачи 2014
Дата 02.02.2025

Описание

Прoдам таунхaус в Анапе, пос. Cупсeх

Heповторимоe по cвоeй красоте и пaнорaмным видам меcто.

600м до мoря! Смoтpoвaя плoщадкa Лысая гopа — это гоpнaя возвышенноcть выcотой 312 метpов, pаспoложенная нa юго-вocтокe куроpта Анапа. Отсюда начинаются Кавказские горы.

2-этажный таунхаус площадью 150 кв.м и плюс цокольный этаж площадью 70 кв.м и высотой потолка 2,7м, что позволит использовать его как тренажерный зал, комнату отдыха или для любого другого жилого назначения. Итого общая площадь всех помещений 220 кв.м.

Все коммуникации заведены в дом.

Дом продается с ремонтом в стиле "лофт" и полностью с мебелью и техникой.

В каждой комнате установлена сплит-система, 7 спальных мест, большая кухня, санузел на каждом этаже, гостиная с выходом на задний двор, где достаточно места для организации зоны отдыха с бассейном, шезлонгами и беседкой. Из комнаты на втором этаже есть выход на балкон, где открывается невероятный вид на море, и панораму Анапы. Во дворе перед домом просторная территория для парковки двух автомобилей. Сам участок прямоугольной формы площадью 3 сот.

Это идеальный дом для летнего отдыха, так же отличный вариант для сдачи в аренду на любой срок и для постоянного проживания недалеко от города Анапы в живописном, спокойном месте с прекрасным видом на море.

600м до спуска к морю, который представляет собой лестницу из 800 ступенек со смотровыми площадками и местами для отдыха.

Близкое расположение к центру Анапы и пляжам делает п. Супсех очень привлекательным для желающих приобрести жилье в этом районе и для туристов при выборе аренды жилья.

Развитая инфраструктура, все необходимое в шаговой доступности.

Документы прошли проверку, готовы к продаже, один собственник, вся сумма в договоре.

Показ в любое время и если остались вопросы, пожалуйста звоните!

Заявка на покупку, продажу недвижимости

CENTR COLL

+7 918 670-14-14

Заинтересовал объект? Оставьте нам свою контактную информацию, мы перезвоним и расскажем подробнее

Похожие объекты

Продажа

Таунхаус 99 кв.м на участке 0.7 сот

Супсех, ул Аэродромная
14 900 000 руб.
Подробнее
Продажа

Дом 138 кв.м на участке 6.2 сот

Супсех, ул Пушкина
16 450 000 руб.
Подробнее
Продажа

Дом 130 кв.м на участке 3.6 сот

16 500 000 руб.
Подробнее
Продажа

Дом 180 кв.м на участке 7.2 сот

Супсех, ул Рязанская
14 400 000 руб.
Подробнее
Продажа

Дом 244.4 кв.м на участке 7 сот

Супсех, ул Зеркальная
14 500 000 руб.
Подробнее

Мы поможем вам с выбором!