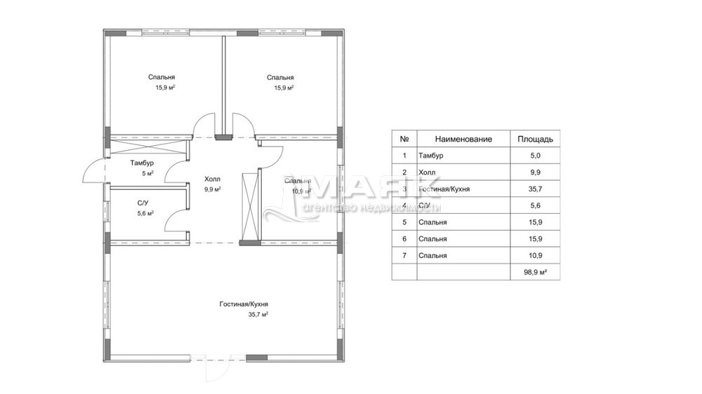
Дом 130 кв.м на участке 4 сот

Витязево, ул Пионерская

Нас. пункт Витязево
Код объекта 13808
Назначение ИЖС
Всего комнат 3
Площадь (м2) 130 / 45,92 / 34,82
Площадь участка 4 сот.
Фасад участка 15 м.
Этажей 1
Отопление центральное
Газоснабжение нет
Водоснабжение центральное
Канализация центральная
Ипотека нет
Год сдачи 2022
Дата 25.05.2023

Описание

ДОМ НА БЕРЕГУ МОРЯ ПО ВКУСНОЙ ЦЕНЕ!

В курортном поселке Витязево продается новый одноэтажный дом площадью 130 кв м, отделка предчистовая: теплый пол, бетонная стяжка пола, серые стены, коммуникации выведены, они центральные во всем поселке (вода, свет), канализация септик, планируется подключение газа. Придомовая территория выполнена под ключ: пресс бетон вокруг дома, озеленение, ограждение забором, навес для автомобиля. Участок 4 сотки, назначение ижс, фасад 15 м. Сдача июнь-июль 2022 года.

Звоните!

Заявка на покупку, продажу недвижимости

CENTR COLL

+7 918 670-14-14

Заинтересовал объект? Оставьте нам свою контактную информацию, мы перезвоним и расскажем подробнее

Похожие объекты

Продажа

Дом 107 кв.м на участке 3 сот

Витязево, ул Пионерская
9 450 000 руб.
Подробнее
Продажа

Дом 138 кв.м на участке 6.81 сот

Витязево, ул Лиманная
10 000 000 руб.
Подробнее
Продажа

Дом 120 кв.м на участке 3.6 сот

Витязево, ул Кавказская
11 000 000 руб.
Подробнее
Продажа

Дом 192 кв.м на участке 4.7 сот

Витязево, ул Македонского
10 900 000 руб.
Подробнее
Продажа

Дом 97 кв.м на участке 3 сот

Витязево
9 500 000 руб.
Подробнее

Мы поможем вам с выбором!