Дом 174 кв.м на участке 6.4 сот

Анапа, ул Владимира Будзинского

Нас. пункт Анапа
Код объекта 7468
Всего комнат 3
Площадь (м2) 174 / 42 / 59,4
Площадь участка 6.4 сот.
Фасад участка 25.47 м.
Этажей 1
Отопление электрическое
Газоснабжение ТУ
Водоснабжение центральное
Канализация автономная
Ипотека да
Год сдачи 2020
Квартал сдачи 1
Дата 22.04.2022

Описание

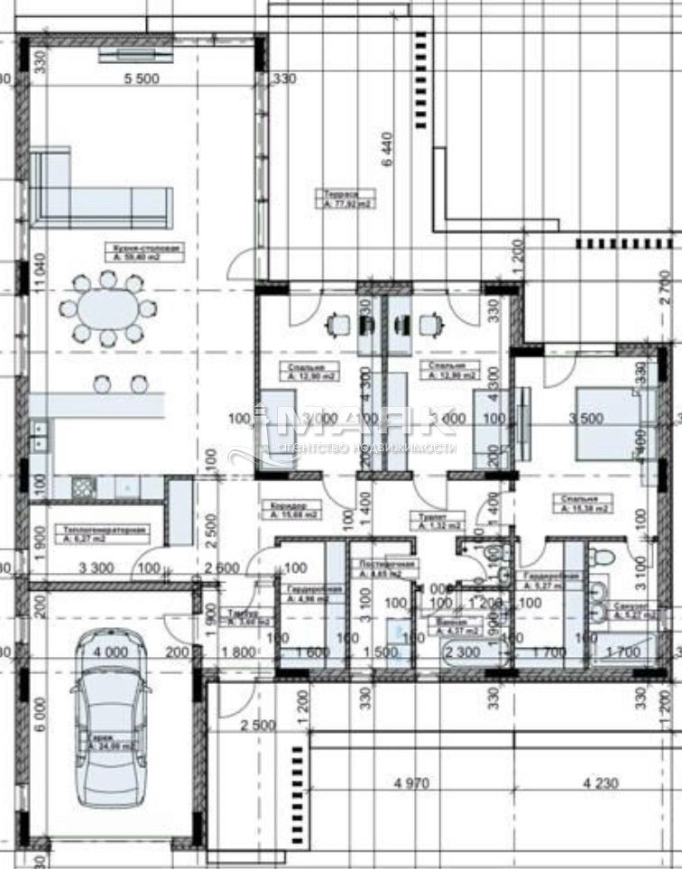
Продается новый дом в современном стиле "ХайТек" общей площадью 174 кв.м. в ближайшем пригороде Анапа, п. Джемете. Участок 6,4 сот. ИЖС.

Кухня-гостиная 59,4 кв.м.имеет панорамное остекление с выходом на крытую террасу.
Три полноценных спальни с выходами на крытую террасу: одна спальня 15,38 кв.м. имеет свою гардеробную комнату 5,27 и санузел 5,27; вторая спальня 12,9 кв.м. и третья спальня также 12,9 кв.м.
Для двух спален свой раздельный санузел: 4,37 ванна и туалетная комната 1,32 кв.м. и гардеробная 4,96 кв.м.
Также в доме есть большой гараж 24 кв.м. с автоматическими рольставнями и доступом через входную группу.

При строительстве дома соблюдены все строительные нормы, произведена инженерная подготовка участка.
Дом сдается в предчистовой отделке, стены оштукатурены под маяки и готовы для покраски или поклейке обоев.
Смонтирована эл.проводка, в гостинной и помещениях общего пользования устроен теплый водяной пол, сделана разводка холодной и горячей воды.
Выполнена песчано-цементная стяжка пола, на которую можно укладывать плитку и ламинат.
Вышеперечисленное позволяет сделать ремонт в максимально короткое время, и уже с начала лета наслаждаться отдыхом.

Территория домовладения огорожена металлическим забором по бетонному фундаменту, установлены качественные ворота, двор вымощен тротуарной плиткой, во дворе посажен износостойкий газон.
Придомовая территория широкая, оборудована большой клумбой, засеян газон, и высажены декоративные деревья. Достаточно места для парковки нескольких автомобилей.

Расположения дома максимально удобное, как для круглогодичного проживания, так и для сдачи в аренду. Соседние дома сдаются круглогодично!
До песчаного пляжа и Пионерского проспекта 1,5 км, до Ж/Д вокзала 3 км, до центра Анапы 7 км.

Оперативный показ и выход на сделку.

Возможен вариант дистанционной покупки.

Звоните, отвечу на все интересующие вопросы!

Заявка на покупку, продажу недвижимости

CENTR COLL

+7 918 670-14-14

Заинтересовал объект? Оставьте нам свою контактную информацию, мы перезвоним и расскажем подробнее

Похожие объекты

Продажа

Дом 210 кв.м на участке 6 сот

Анапа, ул Родниковая
18 000 000 руб.
Подробнее
Продажа

Дом 110 кв.м на участке 4 сот

Анапа, ул Тургенева
21 000 000 руб.
Подробнее
Продажа

Дом 150 кв.м на участке 7 сот

Витязево, ул Черноморская
19 990 000 руб.
Подробнее
Продажа

Дом 180 кв.м на участке 4 сот

Анапа, ул Омелькова
18 500 000 руб.
Подробнее
Продажа

Дом 181.8 кв.м на участке 4.61 сот

Анапа, ул 18 Армии
18 890 000 руб.
Подробнее

Мы поможем вам с выбором!