Дом 122 кв.м на участке 3.4 сот

Супсех, ул Прибрежная

Нас. пункт Супсех
Код объекта 52147
Назначение ИЖС
Всего комнат 4
Площадь (м2) 122 / 75 / 25
Площадь участка 3.4 сот.
Фасад участка 15 м.
Этажей 2
Отопление инд. газовое
Газоснабжение по меже
Водоснабжение автономное
Канализация автономная
Ипотека да
Дата 13.04.2024

Описание

ПРОДАЕТСЯ ДОМ В САМОМ НАЧАЛЕ СУПСЕХА(заезд с Ленина)!!!

2-этажный дом с предчистовой отделкой, площадью 122 кв.м. на участке 3.4 сот. земли.

До города на машине 1 минута, до спуска к морю 5 минут пешком, Большой Утриш 20 минут на машине!

Дом зарегистрирован и получено право собственности, Вы покупаете готовый дом!

Газ(подключение на ВАС), скважина, индивидуальное газовое отопление, автономная канализация(септик), свет 15 кВт 3 фазы.

Участок правильной формы с фасадом 15 метров!

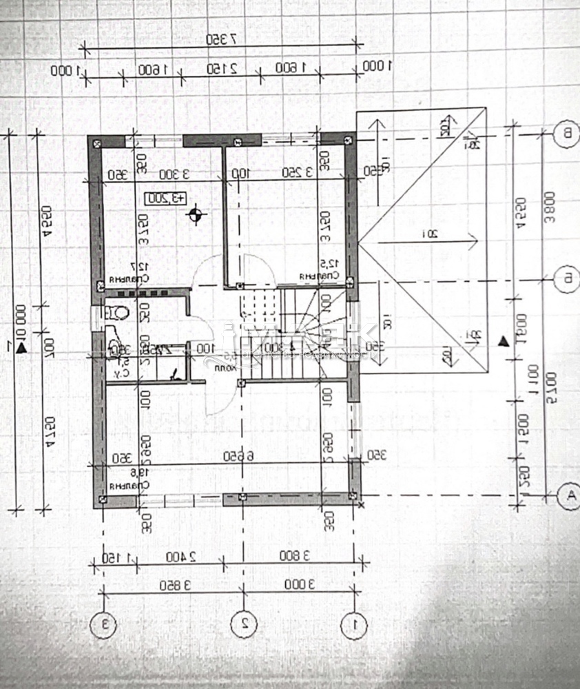
Планировка первого этажа: прихожая, коридор, комната(гостевая спальня), санузел, кухня-гостинная с выходом на террасу во двор.

Планировка второго этажа: 3 спальни, санузел, коридор.

В предчистовую отделку входит: штукатурка стен, шпаклевка стен, электроразводка(установлены розетки и выключатели), водяные теплые полы, стяжка пола, радиаторы отопления, потолки на втором этаже подшиты гипсокартоном.

По участку входит: стоянка под машину, тропинка к дому, отмостка вокруг дома, ливневка, забор вокруг дома, откатные ворота, калитка, завозная земля под насаждения.

Документы готовы к сделке.

Подходит ипотека и материнский капитал.

Приятного просмотра и приобретения

  • мансарда

Заявка на покупку, продажу недвижимости

CENTR COLL

+7 918 670-14-14

Заинтересовал объект? Оставьте нам свою контактную информацию, мы перезвоним и расскажем подробнее

Похожие объекты

Продажа

Таунхаус 300 кв.м на участке 1 сот

Супсех, ул Дизайнерская
12 999 999 руб.
Подробнее
Продажа

Дом 200 кв.м на участке 6 сот

Супсех, ул Чапаева
13 890 000 руб.
Подробнее
Продажа

Дом 182.2 кв.м на участке 5.11 сот

Супсех, ул Андрея Левинского
12 000 000 руб.
Подробнее
Продажа

Дом 180 кв.м на участке 7 сот

Супсех, ул Стрелецкая
13 000 000 руб.
Подробнее
Продажа

Дом 130 кв.м на участке 5 сот

Супсех, ул Горная
13 000 000 руб.
Подробнее

Мы поможем вам с выбором!