Дуплекс 100 кв.м на участке 2.5 сот

Анапская, ул Набережная

Нас. пункт Анапская
Код объекта 50237
Назначение ИЖС
Всего комнат 3
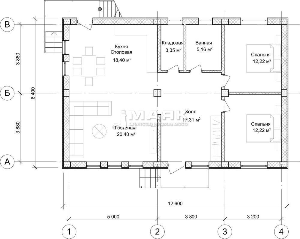
Площадь (м2) 100 / 50 / 40
Площадь участка 2.5 сот.
Фасад участка 20 м.
Этажей 1
Отопление инд. газовое
Газоснабжение центральное
Водоснабжение центральное
Канализация автономная
Ипотека нет
Дата 21.07.2023

Описание

ПРОДАМ ДУПЛЕКС В БЛИЖАЙШЕМ ПРИГОРОДЕ АНАПЫ - СТ.АНАПСКАЯ.

Дуплекс в стиле Хай-Тек, 1 этажный, общей площадью 100 кв.м на земельном участке 2 сотки.
На данном этапе в стройке. Готовность к концу 2022 г.: монолит, заполнения керамзитовых блок, облицовка кирпич и Кароед. Утеплён мин.ватой 8см, и пенопласт 10см.

Будет в качественной предчистовой отделке: Штукатурка, стяжка, разводка электрики, сантехники, радиаторы, теплые полы.
Просторная кухня - Гостиная 40кв.м. (при желании на этапе строительства можно сделать раздельно) , 2 спальни по 12,5 кв.м., котельная, санузел;
Крыша эксплуатируемая, с которой откроется замечательный вид на горы и станицу.

Двор благоустроен: выложена плитка, заезд для машин забетонирован, высажены туи.

Коммуникации: Газ ( двухконтурный газовый котел), свет 15 кВт, вода центральная, септик.

Большим преимуществом приобретения данного объекта является его месторасположение,
1,5 км до города-курорта Анапа, 5-10 минут до ближайшего благоустроенного пляжа.

Развитая инфраструктура станицы Анапской: рядом с домом школа, администрация, амбулатория, Fix Prise, супермаркет "5", Wildberries, дет.сад, рынок, остановка общественного транспорта .
Жемчужина этой станицы является Шикарный парк, где можно отдохнуть и с удовольствием провести время всей семьей .

Продажа на прямую от застройщика!

ВОЗМОЖНА ПОКУПКА В ИПОТЕКУ (обговаривается)!

Хватит Мечтать - ДЕЙСТВУЙ!!! ЗВОНИ ПРЯМО СЕЙЧАС!

Заявка на покупку, продажу недвижимости

CENTR COLL

+7 918 670-14-14

Заинтересовал объект? Оставьте нам свою контактную информацию, мы перезвоним и расскажем подробнее

Похожие объекты

Продажа

Дом 250 кв.м на участке 5 сот

Анапская, ул Николаевская
6 800 000 руб.
Подробнее
Продажа

Дом 60 кв.м на участке 6.5 сот

Анапская, ул Кавказская
6 200 000 руб.
Подробнее
Продажа

Дом 152 кв.м на участке 8 сот

Анапская, ул Космонавтов
5 900 000 руб.
Подробнее
Продажа

Дом 59 кв.м на участке 3.3 сот

Анапская, ул Приобская
6 200 000 руб.
Подробнее
Продажа

Дом 125 кв.м на участке 3 сот

Анапская, ул Карчевского
7 000 000 руб.
Подробнее

Мы поможем вам с выбором!