Дом 91 кв.м на участке 4.5 сот

Супсех, ул Андреевская

Нас. пункт Супсех
Код объекта 52630
Назначение ИЖС
Всего комнат 3
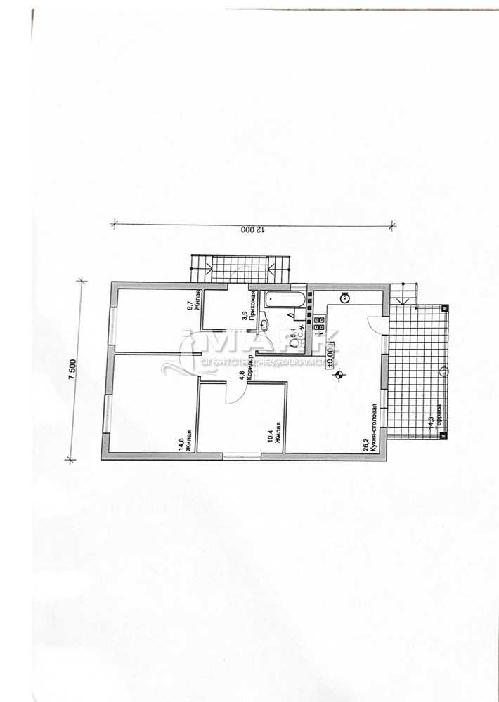
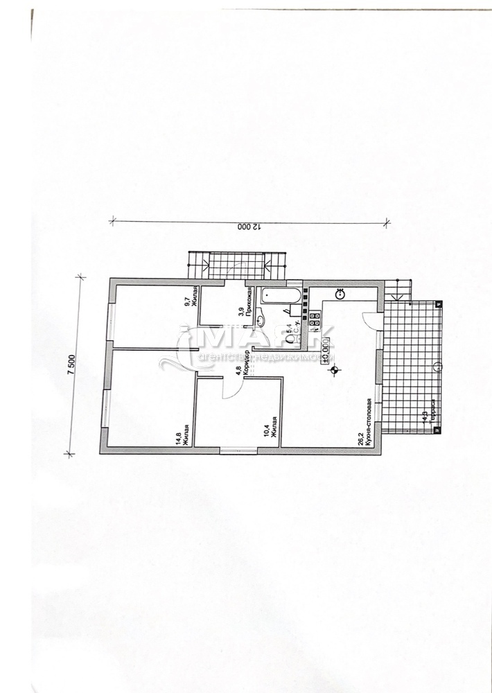
Площадь (м2) 91 / 35 / 26
Площадь участка 4.5 сот.
Фасад участка 12 м.
Этажей 1
Отопление инд. газовое
Газоснабжение центральное
Водоснабжение автономное
Канализация автономная
Электроснабжение есть
Ипотека да
Дата 10.01.2024

Описание

УНИКАЛЬНОЕ ПРЕДЛОЖЕНИЕ!

ПОДХОДИТ ЛЬГОТНАЯ ИПОТЕКА!

Дом с видом на город Анапу и Черное море!

Рядом реликтовый лес.

В продаже одноэтажный дом в предчистовой отделке, площадью 91 кв.м. на участке 4,5 сот. земли.

До города на машине 5 минут, до пляжа в Сукко 15 минут, Большой Утриш 20 минут!

Дом зарегистрирован и получено право собственности.

Планировка первого этажа: прихожая, коридор, санузел, кухня-гостинная с выходом на террасу во двор, 3 спальни.

В предчистовую отделку входит: штукатурка стен, шпаклевка стен, электроразводка, розетки, выключатели, водяные теплые полы, стяжка пола, радиаторы отопления, потолки подшиваются гипсокартоном.

По участку входит: забетонировано машиноместо, тропинка к дому, отмостка вокруг дома, ливневка, забор вокруг дома, завозная земля под насаждения.

Подходит ипотека и материнский капитал.

На участке есть возможность разместить и баню, и бассейн, и зону барбекю.

Звоните!

#доманапа
#продажадома
#ипотека
#жизньнаморе
#переездванапу
#продажа
#недвижимость

  • угловой

Заявка на покупку, продажу недвижимости

CENTR COLL

+7 918 670-14-14

Заинтересовал объект? Оставьте нам свою контактную информацию, мы перезвоним и расскажем подробнее

Похожие объекты

Продажа

Дом 95 кв.м на участке 3.5 сот

Супсех, ул Федора Гладкова
9 500 000 руб.
Подробнее
Продажа

Дом 240 кв.м на участке 7.5 сот

Супсех, ул Ярославская
9 999 000 руб.
Подробнее
Продажа

Дом 136 кв.м на участке 3 сот

Супсех, ул Сергея Бомбелова
8 700 000 руб.
Подробнее
Продажа

Дом 100 кв.м на участке 2 сот

Супсех, ул Космонавта Комарова
9 900 000 руб.
Подробнее
Продажа

Дом 87 кв.м на участке 4 сот

Супсех, ул Невская
9 990 000 руб.
Подробнее

Мы поможем вам с выбором!