Дом 90 кв.м на участке 5 сот

Гостагаевская, ул Советская

Нас. пункт Гостагаевская
Код объекта 52639
Назначение ИЖС
Всего комнат 3
Площадь (м2) 90 / 48 / 17
Площадь участка 5 сот.
Фасад участка 20 м.
Этажей 1
Отопление электрическое
Газоснабжение нет
Водоснабжение автономное
Канализация автономная
Электроснабжение есть
Ипотека да
Год сдачи 2023
Дата 01.04.2025

Описание

ЛЬГОТНАЯ ИПОТЕКА!

В Продаже дом в предчистовой отделке площадью 90 кв.м. на участке 5 сот. в станице Гостагаевской.

Коммуникации: центральное водоснабжение, свет 15 кВт, биосептик.

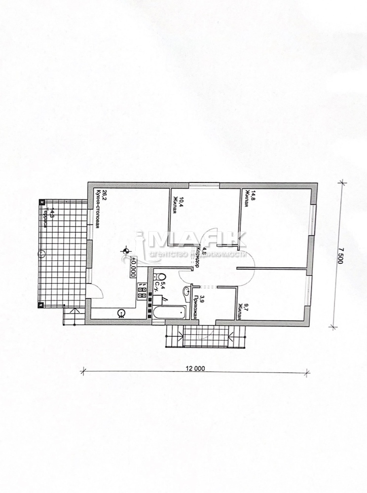
Планировка дома: прихожая, коридор, 3 спальни, санузел, кухня-гостинная с выходом на террасу.

В предчистовую отделку входит: штукатурка стен, шпаклевка стен, электроразводка, розетки, выключатели, водяные теплые полы, стяжка пола, радиаторы отопления, потолки подшиваются гипсокартоном.

По участку входит: отмостка под машиноместо, тропинка к дому, отмостка вокруг дома, ливневка, забор вокруг дома, завозная земля под насаждения, зона барбекю.

Документы готовы к сделке.

Звоните!

  • угловой

Заявка на покупку, продажу недвижимости

CENTR COLL

+7 918 670-14-14

Заинтересовал объект? Оставьте нам свою контактную информацию, мы перезвоним и расскажем подробнее

Похожие объекты

Продажа

Дом 90 кв.м на участке 5 сот

Гостагаевская
7 650 000 руб.
Подробнее
Продажа

Дом 95 кв.м на участке 5 сот

Гостагаевская, ул Мира
7 600 000 руб.
Подробнее
Продажа

Дом 70 кв.м на участке 6.5 сот

Гостагаевская, ул Крымская
7 500 000 руб.
Подробнее
Продажа

Дом 84 кв.м на участке 4 сот

Гостагаевская, ул Комсомольская
7 500 000 руб.
Подробнее
Продажа

Дом 134 кв.м на участке 6 сот

Гостагаевская, ул Комсомольская
7 200 000 руб.
Подробнее

Мы поможем вам с выбором!