Дом 340 кв.м на участке 8 сот

Усатова Балка, ул Красная

Нас. пункт Усатова Балка
Код объекта 59640
Назначение ИЖС
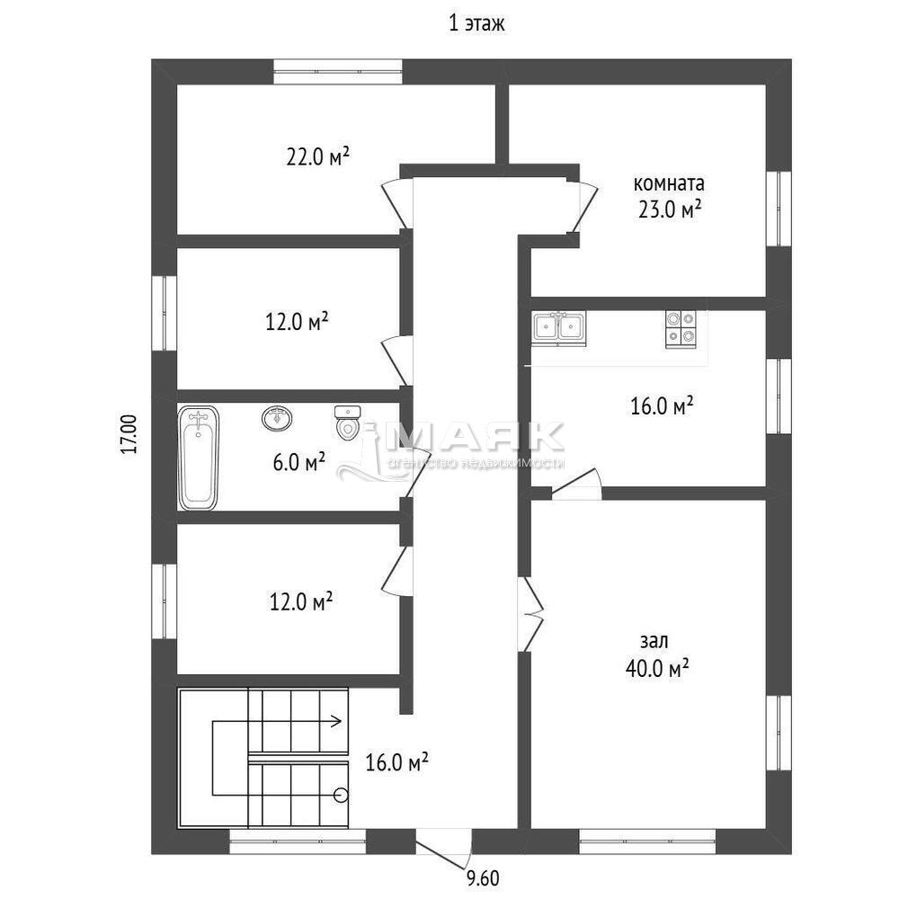
Всего комнат 5
Площадь (м2) 340 / 280 / 40
Площадь участка 8 сот.
Фасад участка 15 м.
Этажей 3
Отопление инд. газовое
Газоснабжение центральное
Водоснабжение центральное
Канализация центральная
Ипотека да
Дата 01.12.2025

Описание

Продается просторный дом в хуторе Красный, Анапский район

Площадь: 340 м²
Количество спален: 5
Участок: 6 соток
Предлагаем вашему вниманию великолепный дом, расположенный в живописном хуторе Красный, всего в 20 минутах от центра Анапы. Этот просторный дом станет идеальным местом для комфортной жизни и отдыха.

▎Особенности недвижимости:

- Планировка: Удобная и функциональная планировка включает 5 светлых спален, просторную гостиную, кухню и ванные комнаты.
- Уютные спальни: Каждая спальня оформлена с любовью и вниманием к деталям, что создает атмосферу уюта и спокойствия.
* Современные удобства: Дом оснащен современными коммуникациями, включая [укажите наличие кондиционеров, системы отопления, водоснабжения и т.д.
* Зеленая территория: что делает его идеальным для семейных встреч и отдыха на свежем воздухе.
* В шаговой доступности находятся магазины, школы, детские сады и транспортные остановки.

* Спокойный и дружелюбный район, идеальный для семейной жизни.
* Близость к морю и природным достопримечательностям Анапы.
* Возможность использования дома как для постоянного проживания, так и для организации бизнеса (например, сдача в аренду).

Не упустите возможность стать владельцем этого замечательного дома! Для получения дополнительной информации и организации просмотра звоните по телефону.

Заявка на покупку, продажу недвижимости

CENTR COLL

+7 918 670-14-14

Заинтересовал объект? Оставьте нам свою контактную информацию, мы перезвоним и расскажем подробнее

Похожие объекты

Продажа

Дом 153.3 кв.м на участке 6 сот

Усатова Балка
12 000 000 руб.
Подробнее
Продажа

Дом 118.2 кв.м на участке 4.2 сот

Усатова Балка, ул Чехова
13 450 000 руб.
Подробнее
Продажа

Дом 166.3 кв.м на участке 3 сот

Усатова Балка, ул Чехова
11 900 000 руб.
Подробнее
Продажа

Дом 139.4 кв.м на участке 5.1 сот

Усатова Балка, ул Чехова
12 500 000 руб.
Подробнее
Продажа

Дом 110 кв.м на участке 5 сот

Усатова Балка, ул Розовая
11 950 000 руб.
Подробнее

Мы поможем вам с выбором!