Дом 122 кв.м на участке 4 сот

Супсех, ул Малиновая

Нас. пункт Супсех
Код объекта 13027
Назначение ИЖС
Всего комнат 4
Площадь (м2) 122 / 70 / 25
Площадь участка 4 сот.
Фасад участка 15 м.
Этажей 2
Отопление электрическое
Газоснабжение по меже
Водоснабжение автономное
Канализация автономная
Ипотека да
Дата 28.11.2023

Описание

Дом в стадии строительства!

Право собственности будет получено, Вы покупаете готовый дом!

Продается двухэтажный дом 122 квадратных метров на 4 сотках земли!

До асфальта 40 метров, плюс до дома отсыпана хорошая дорога!

До магазинов 50 метров, автобусная остановка 300 метров!

Толщина стен в доме 40 см!

Высота потолков на первом этаже 3 метра, на втором этаже 2.9!

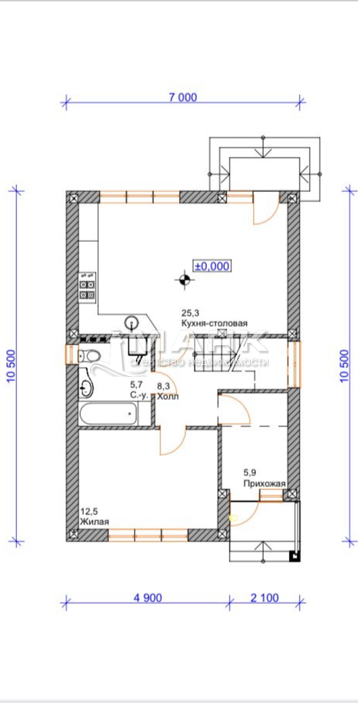
Планировка первого этажа: комната(гостевая спальня), кухня-гостиная, прихожая, коридор и санузел.

Планировка второго этажа: спальня хозяев дома со своей гардеробной, две зеркальные спальни, коридор и санузел.

В предчистовую отделку входит: штукатурка стен, шпаклевка стен, разводка электрики с установкой розеток и выключателей, водяной теплый пол по всему дому( кроме спален), в спальнях установлены радиаторы отопления, стяжка пола, потолок подшивается гипсокартоном.

По участку входит: забор по фасаду из металлического евро-штакетника, забор по периметру участка глухой, калитка, ворота, отмостка вокруг дома, ливневка и чернозем!

Подходит ипотека и материнский капитал!

Есть возможность получить налоговый вычет!

Звоните и записывайтесь на просмотр!

  • угловой

Заявка на покупку, продажу недвижимости

CENTR COLL

+7 918 670-14-14

Заинтересовал объект? Оставьте нам свою контактную информацию, мы перезвоним и расскажем подробнее

Похожие объекты

Продажа

Дом 86 кв.м на участке 1.6 сот

Супсех, Жемчужный пер
9 500 000 руб.
Подробнее
Продажа

Дом 136 кв.м на участке 3 сот

Супсех, ул Кирова
10 980 000 руб.
Подробнее
Продажа

Дом 250 кв.м на участке 6 сот

Супсех, ул Прибрежная
10 950 000 руб.
Подробнее
Продажа

Дом 114 кв.м на участке 4.1 сот

Супсех, ул Чкалова
10 000 000 руб.
Подробнее
Продажа

Дом 90 кв.м на участке 3.5 сот

10 500 000 руб.
Подробнее

Мы поможем вам с выбором!