Дом 80 кв.м на участке 3.5 сот

Супсех, ул Российская

Нас. пункт Супсех
Код объекта 50909
Назначение ИЖС
Всего комнат 3
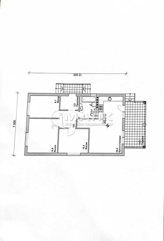
Площадь (м2) 80 / 55 / 26
Площадь участка 3.5 сот.
Фасад участка 16 м.
Этажей 1
Отопление инд. газовое
Газоснабжение по меже
Водоснабжение автономное
Канализация автономная
Ипотека да
Дата 28.11.2023

Описание

Продается дом с предчистовой отделкой, площадью 80 кв.м. на участке 3 сот. земли.

До города 1100 метров, до спуска к морю 600 метров!

Дом зарегистрирован и получено право собственности, Вы покупаете готовый дом!

Газ, автономное водоснабжение, индивидуальное газовое отопление, автономная канализация, свет 15 кВт 3 фазы.

Участок правильной формы!

Планировка: прихожая, коридор, 3 комнаты(спальни), санузел, кухня-гостинная с выходом на террасу во двор.

В предчистовую отделку входит: штукатурка стен, шпаклевка стен, электроразводка, розетки, выключатели, водяные теплые полы, стяжка пола, радиаторы отопления, потолки подшиты гипсокартоном.

По участку входит: отмостка под машиноместо, тропинка к дому, отмостка вокруг дома, ливневка, забор вокруг дома, завозная земля под насаждения.

Документы готовы к сделке.

Подходит ипотека и материнский капитал.

Приятного просмотра и приобретения!

  • мансарда

Заявка на покупку, продажу недвижимости

CENTR COLL

+7 918 670-14-14

Заинтересовал объект? Оставьте нам свою контактную информацию, мы перезвоним и расскажем подробнее

Похожие объекты

Продажа

Дом 127 кв.м на участке 3.4 сот

Супсех, ул Черноморская
9 999 999 руб.
Подробнее
Продажа

Дом 90 кв.м на участке 3.5 сот

Супсех, ул Удачная
9 000 000 руб.
Подробнее
Продажа

Дом 136 кв.м на участке 4.15 сот

Супсех, ул Онежская
10 000 000 руб.
Подробнее
Продажа

Дом 120 кв.м на участке 4.2 сот

Супсех, ул Энтузиастов
8 799 999 руб.
Подробнее
Продажа

Дом 95 кв.м на участке 3 сот

Супсех, ул Сочинская
9 000 000 руб.
Подробнее

Мы поможем вам с выбором!