Дом 140 кв.м на участке 4 сот

Анапская, ул Мира

Нас. пункт Анапская
Код объекта 52085
Назначение ИЖС
Всего комнат 4
Площадь (м2) 140 / 70 / 30
Площадь участка 4 сот.
Фасад участка 15 м.
Этажей 2
Отопление центральное
Газоснабжение центральное
Водоснабжение центральное
Канализация центральная
Ипотека да
Дата 28.08.2023

Описание

ПРОДАЕТСЯ КРАСИВЫЙ И ПРОСТОРНЫЙ ДВУХЭТАЖНЫЙ ДОМ В САМОМ ЦЕНТРЕ АНАПСКОЙ С ОТЛИЧНЫМ ВИДОМ !

Двухэтажный дом в предчистовой отделке, высотой потолков 3,3 м., площадью 140 кв.м. на участке 4 сот. земли.

Самая развитая инфраструктура (магазины, аптеки, автобусные остановки, Почта России, парковая зона и т.д).

До города на машине 5 минут!

Газ, центральная вода, индивидуальное газовое отопление, центральная канализация, свет 15 кВт 3 фазы. Все технические условия получены.

Участок правильной формы с фасадом 15 метров!

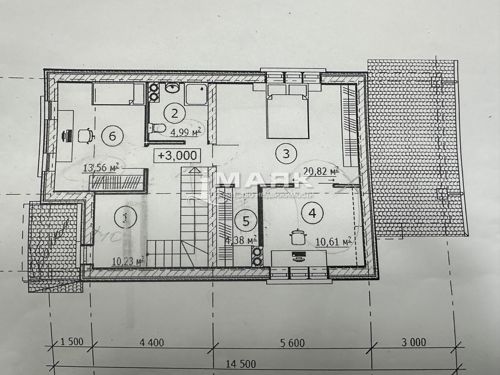
Планировка первого этажа: прихожая с большой гардеробной зоной, коридор, комната (гостевая спальня), санузел, кухня-гостинная с выходом на террасу во двор.

Планировка второго этажа: спальня, мастер-спальня с отдельным кабинетом или же детской комнатой, гардеробной или же своим санузлом (есть возможность предусмотреть), коридор, санузел, выход на балкон.

Предчистовая отделка высокого качества.

В предчистовую отделку входит: штукатурка стен, шпаклевка стен, водяные теплые полы по первому этажу, стяжка пола.

Дом выполнен из качественных строительных материалов: блоки 32 см; утеплитель 7 см; облицовка фасада - кирпич браер; монолитные плиты перекрытия; двухкамерные окна с дорогой фурнитурой.

По участку входит: стоянка под машину, тропинка к дому, отмостка вокруг дома, ливневка, забор вокруг дома, отрывающиеся ворота, калитка.

Документы готовы к сделке.

Подходит ипотека и материнский капитал.

Звоните!

#доманапа
#продажадома
#ипотека
#жизньнаморе
#переездванапу
#продажа #доманапа #застройщиканапа #ипотека #недвижимость #переездванапу
#застройщиканапа #застройщик #анапа #недвижимость #ипотека #москва #купитьдом #переездванапу #жизньнаморе
#агентствонедвижимости #работа #квартира #дом #realtor #wellcom #агентпонедвижимости #пермь #город #сделка #здание #сбербанк #новосибирск #продажа #realty #архитектура #участок #риэлторанапа #калининград #земля #элитнаянедвижимость

  • мансарда
  • угловой

Заявка на покупку, продажу недвижимости

CENTR COLL

+7 918 670-14-14

Заинтересовал объект? Оставьте нам свою контактную информацию, мы перезвоним и расскажем подробнее

Похожие объекты

Продажа

Дом 134 кв.м на участке 3 сот

Анапская, ул Виноградная
13 700 000 руб.
Подробнее
Продажа

Дом 150 кв.м на участке 5.3 сот

Анапская, Тихий пер
13 500 000 руб.
Подробнее
Продажа

Дом 120 кв.м на участке 4 сот

Анапская, Учительский пр-д
12 500 000 руб.
Подробнее
Продажа

Дом 125 кв.м на участке 7.5 сот

Анапская, ул Лермонтова
12 499 000 руб.
Подробнее
Продажа

Дом 115 кв.м на участке 3 сот

Анапская, ул Мира
14 400 000 руб.
Подробнее

Мы поможем вам с выбором!